Baasmudel1,232.00 

Ehitusmaterjalid ei sisalda paigaldust. Paigaldusteenuse saad valida pärast ehitusmaterjalide valimist.

Kokku:
Saada kiri

Garantii: 2 aastat

Kiirtarne võimalus: 2-7 tööpäeva

Tarneviiside kohta loe siit

Baasmudeli tarnekomplekt sisaldab

  • Sügavimmutatud alusraam
  • Põrand – punni- ja soonega laudadest
  • Seinadetailid – ühesooneline freespruss
  • Avatäited – uksed ja aknad koos furnituuri ja piirdeliistudega
  • Katus – punni- ja soonega laudadest
  • Räästa- ia tulekastilauad
  • Tormikinnitusliistud
  • Montaazivahendid
  • Proiekt
  • Paigaldusjuhend

Toote omadused ja eelised

  • Esialgne katusekate
  • Madal metallkattega lävepakk
  • Ei vaja ehitamiseks luba
  • Paigaldatav peegelpildis

Pakend

2390 x 1180 x 470 - 350 kg

Maja detailid on pakitud alusele ja kaetud ilmastikukindla termokahaneva kilega.


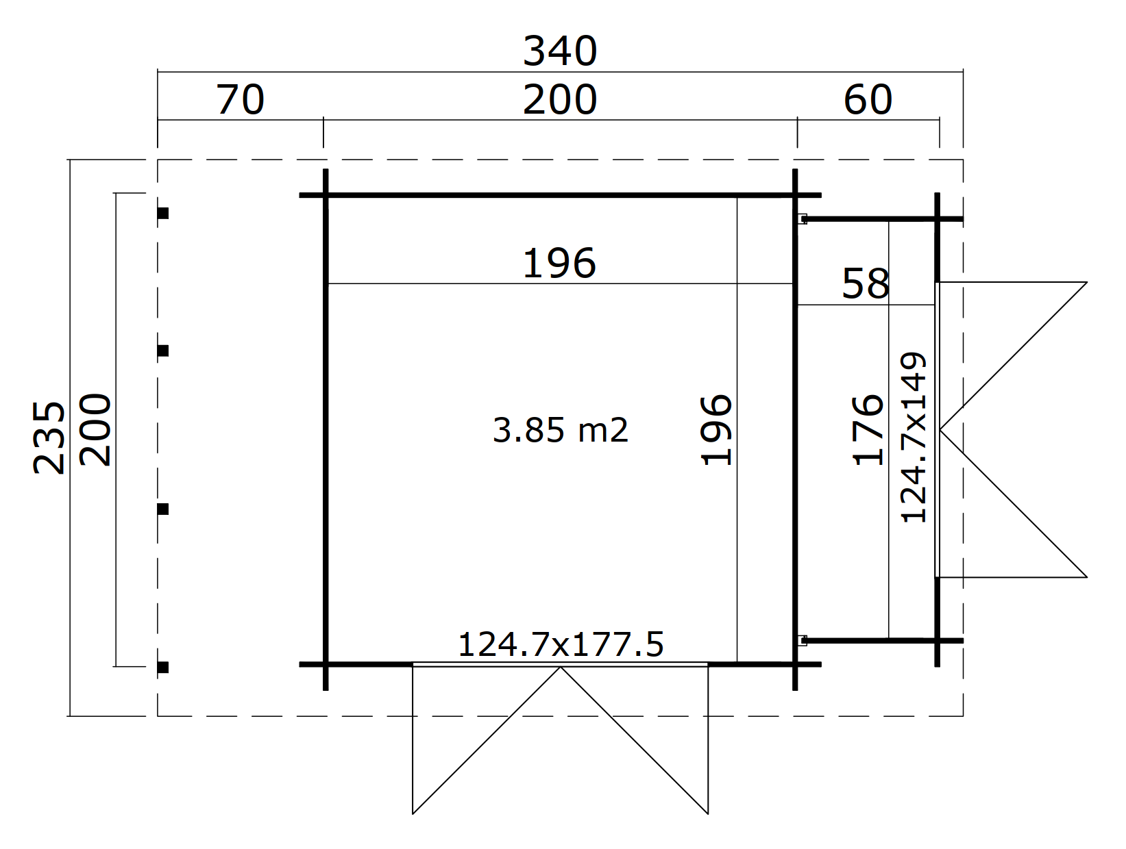
Põrandapind 8.20 m²
Ehitisealune pind: 8.20 m²
Katuse pindala: 8.20 m²
Katuse kalle: 5

Seina paksus 18 mm
Alusraam: -
Põrandalaua paksus: -
Katuselaua paksus: 15 mm

Vundament 328 x 200 cm
Laius koos räästa üleulatuvusega: 339 cm
Sügavus koos räästa üleulatuvusega: 236 cm
Seina kõrgus: 184 cm
Harja kõrgus: 208 cm
Katuse üleulatuvus eest: 21 cm
Katuse üleulatuvus külgedelt: 10 cm
Katuse üleulatuvus tagant: 15 cm

Ukse tüüp Bronze
Ukse mõõdud: 1250 x 1650 mm
Ukse klaasi paksus: 1.5
Ukse klaasi tüüp: Akrüülklaas
Paigaldatav peegelpildis: Ei
Viimistlus: Viimistlemata
Värvitoon: Naturaalne
Konstruktiivne materjal: Feespruss
Nurga tüüp: Tapitud nurk
Materjal: Põhjamaine kuusk
Lumekoormus: 75 kg/m²