Baasmudel2,161.00 

Ehitusmaterjalid ei sisalda paigaldust. Paigaldusteenuse saad valida pärast ehitusmaterjalide valimist.

PUUDUB
+0 €
TÄNAVAKIVI

Munga 60 mm

+920 €
PLAAT

Raudbet. 100 mm

+1 288 €
PUUDUB
+0 €
TÕRVAPAPP +

Eluiga 5 - 10 a. 

+248 €
SINDEL

Eluiga 8 a.

+294 €
SINDEL +

Eluiga 25 a.

+622 €
PUUDUB
+0 €
PUIT

Eluiga 5 - 10 a.

+323 €
PVC

Eluiga 20 a.

+556 €
PLEKK

Eluiga 25 a.

+492 €
PUUDUB
+0 €
VÄRV (tehases)

Eluiga 8 - 12 a.

+1 083 €
LASUR

Eluiga 3 - 5 a.

+240 €
VÄRV

Eluiga 10 - 12 a.

+392 €
Värvivalik
Roheline
Pruun
Punane
Must
Toon 1 - Seinad
Liustiku roheline
Süsihall
Helehall
Rootsi punane
Toon 2 - Uksed / Aknad / Piirdeliistud
Valge
Kokku:
Saada kiri

Garantii: 2 aastat

Kiirtarne võimalus: 2-7 tööpäeva

Tarneviiside kohta loe siit

Baasmudeli tarnekomplekt sisaldab

  • Seinadetailid – ühesooneline freespruss
  • Avatäited – uks koos furnituuri ja piirdeliistudega
  • Katus – punni- ja soonega laudadest
  • Räästa- ja tuulekastilauad
  • Tormikinnitusliistud
  • Montaazivahendid
  • Projekt
  • Paigaldusjuhend

Toote omadused ja eelised

  • Ei sisalda põrandat
  • Madal metallkattega lävepakk
  • Ei vaja ehitamiseks luba
  • Paigaldatav peegelpildis

Pakend

5600 x 1180 x 730 - 1230 kg

Maja detailid on pakitud alusele ja kaetud ilmastikukindla termokahaneva kilega.


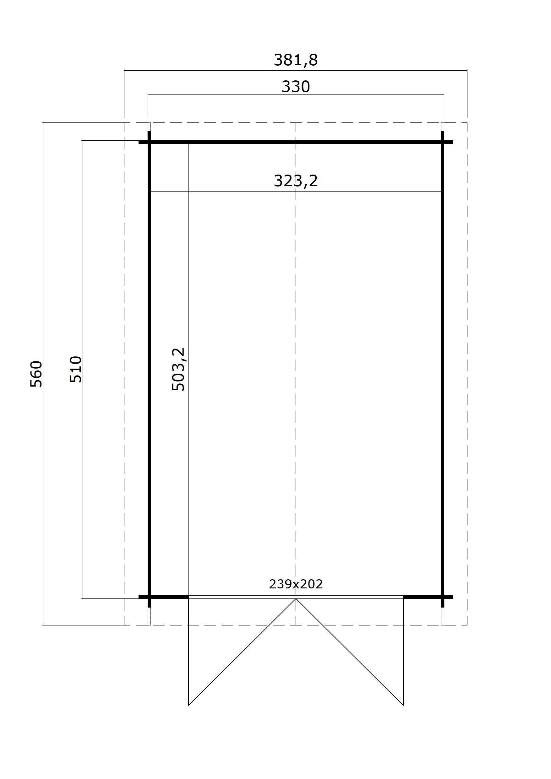
Põrandapind 16.36 m²
Ehitisealune pind: 16.83 m²
Katuse pindala: 22.40 m²
Katuse kalle: 17.4

Seina paksus 28 mm
Alusraam: -
Põrandalaua paksus: -
Katuselaua paksus: 18,5 mm

Vundament 330 x 510 cm
Laius koos räästa üleulatuvusega: 382 cm
Sügavus koos räästa üleulatuvusega: 560 cm
Seina kõrgus: 211 cm
Harja kõrgus: 262 cm
Katuse üleulatuvus eest: 30 cm
Katuse üleulatuvus külgedelt: 26 cm
Katuse üleulatuvus tagant: 20 cm
Ukse mõõdud: 2390 x 2020 mm
Paigaldatav peegelpildis: Jah
Viimistlus: Viimistlemata
Värvitoon: Naturaalne
Konstruktiivne materjal: Feespruss
Nurga tüüp: Tapitud nurk
Materjal: Põhjamaine kuusk
Lumekoormus: 13 kg/m²